Другие типы конструкции
Самодельная пилорама из дерева
В целом изготовление пилорамы из бензопилы из дерева ничем принципиально не отличается от монтажа устройства из металлического профиля или труб. Разница заключается в том, что вместо них используют дерево. Главные плюсы такой конструкции – простота и быстрота сборки, более низкая стоимость материалов, а также отсутствие необходимости наличия сварочного аппарата.
Что касается срока службы деревянной пилорамы, то он достаточно высок при условии, что она будет укрыта от дождя и других атмосферных осадков.
Мобильная
Для изготовления мобильной пилорамы собирают только прямоугольную насадку-ограничитель из металлического профиля. Ее фиксируют на пластине бензопилы, где крепится цепь. Насадку опускают на прочно зафиксированное бревно и проводят пилу вдоль него. В результате срезается доска.
Мнение эксперта
Куликов Владимир Сергеевич
Если вы решили собирать мобильную пилораму, то лучше в верхней части насадки-ограничителя приварить ручку. Это существенно облегчит и сделает более эффективным использование устройства.
Главное достоинство мобильной пилорамы из бензопилы в том, что ее можно взять куда угодно, а также в быстрой сборке и разборке.
Но есть у нее и один весьма существенный недостаток – поскольку во время работы ее необходимо постоянно держать в руках, очень легко ошибиться и получить неровную доску с разной толщиной в разных местах.
Пилорама из болгарки или дисковой пилы
Для изготовления пилорамы можно использовать не только бензопилу, но и болгарку. Собирается устройство точно так же. Единственное отличие заключается в том, что в конце основании по центру крепят болгарку с соответствующей насадкой или ручную дисковую пилу.
Следует помнить, что в силу конструкции болгарки и дисковой пилы тележка пилорамы должна быть смонтирована иначе.
Инструкция по эксплуатации самодельной пилорамы из бензопилы
После того как конструкция собрана и проверена, ее необходимо опробовать в работе с древесиной. Для этого необходимо:
- На основании с помощью тисков зажать бревно.
- На полозьях и пилораме установить разметку.
- Плавно завести агрегат и медленно начать вести его к бревну. При этом шина бензопилы должна находиться точно по центру разметки пропила.
Рывковых движений при распиле делать нельзя, так как это может привести к стопору шины.
Следует иметь в виду, что работать необходимо в средствах индивидуальной защиты, к которым относятся рукавицы, халат, нарукавники и очки. Кроме этого, заранее стоит побеспокоиться и о защите для подвижной рамки. Ее можно изготовить из акрила или прозрачного пластика. Такие щитки способны защитить от пильной цепи и стружки.
Собранная своими руками из бензопилы пилорама позволит изготовить качественный пиломатериал с распилом правильной формы. Поэтому, если приходиться часто работать с пиломатериалами, то такое самодельное оборудование, выполненное на основе приложенных чертежей и видеороликов, станет незаменимой вещью в хозяйстве.
Подготовка к работе
Приступая к роспуску кругляка, следует соорудить две прочных подставки, куда бревно можно будет положить или закатить с помощью рычагов. Для того, чтобы ствол не ёрзал и не проворачивался, по бокам его подбивают деревянными клинышками.
Самое сложное — ровно отпилить верхний горбыль, ведь по полученному резу, как по шаблону, пойдёт дальнейшая работа. Чтобы избежать перекоса, к торцам бревна прибиваются или прикручиваются два деревянных бруска, выставленные по уровню. На них кладётся ровная доска на саморезы, и также подбивается клинышками. После проверки геометрии можно приступать к распиловке.
Как работать на самодельной пилораме
Алгоритм самостоятельной распиловки на стационарной установке с подвижным инструментом:
- Уложить бревно или готовый брус на направляющие поперечины. При необходимости заготовку фиксируют зажимами винтового типа или стальными косынками, которые фиксируются на поперечинах.
- Отрегулировать положение пилы на подвижной раме. Затянуть точки крепления инструмента и проверить надежность устройства для фиксации.
- Дозаправить резервуары для топлива и масла, которое необходимо для смазки цепи.
- Запустить мотор и прогреть агрегат на холостых оборотах, а затем подвести полотно к торцевому срезу заготовки.
- Поднять обороты до рабочего диапазона (определяется на слух) и зафиксировать положение курка, управляющего дроссельной заслонкой. Для удержания элемента применяется струбцина или самодельное приспособление.
- Приступить к выполнению горизонтального запила, перемещая инструмент с равномерной скоростью. При работе необходимо быть осторожным, поскольку существует риск возникновения ударной нагрузки при контакте полотна с уплотненными участками древесины (зона прорастания сучьев).
- На следующем этапе пила отводится на расстояние, равное толщине будущей доски и операция повторяется заново. При работе требуется проверять уровень масла в бачке, при эксплуатации цепной пилы без подачи смазки начинается интенсивный износ рабочих кромок.
При эксплуатации дисковой установки бревно укладывается на нижнюю раму установки, а затем плавно подается в направлении вращающегося рабочего органа. Рекомендуется применение направляющего элемента, предотвращающего уход бревна вбок. Аналогичным образом распускается древесина на установках, оборудованных ленточной пилой.
При эксплуатации самодельной пилорамы требуется применять средства индивидуальной защиты (очки, наушники), предохраняющие глаза и органы слуха от травм. Рекомендуется использовать специальную одежду и рукавицы из плотного материала, способные защитить руки от повреждений острыми фрагментами древесины. Часть пользователей устанавливает на самодельные установки защитные щитки из органического стекла, которые отражают поток опилок от рабочего полотна.
Этапы самостоятельного изготовления
Лесопилка нуждается в наличии специального деревообрабатывающего оборудования — пилорамы. Можно купить ее уже готовую в магазине, но это будет стоить довольно дорого. Поэтому вопрос, как сделать пилораму в домашних условиях, остается актуальным.
Самодельное устройство из бензопилы
Приспособление для распиловки бревен бензопилой своими руками — наиболее распространенный вариант изготовления этого типа оборудования дома. Процесс занимает немного времени, а самоделка способна работать длительное время без ремонта.
Для работы понадобятся такие материалы:
- сварочный аппарат с электродами;
- шурупы;
- гвозди;
- столбики;
- электропила;
- роликовые подшипники.
Перед тем как сделать пилораму своими руками, специалисты советуют обратить внимание на такие моменты:
- Если планируется распиливать бревна большого диаметра, необходимо для работы использовать более мощные пилы с длинной цепью и шиной.
- Для подачи тяжелой древесины необходимо предусмотреть наличие специального домкрата. Доска же будет приниматься посредством использования погрузчика.
- При работе необходимо продумать механизм для фиксации бревен. Это предупредит вибрацию рабочего материала.
- Бензопила должны быть довольно мощной, что поможет сделать распиловку быстрее и проще.
- Станок рекомендуется оборудовать электрическим двигателем. Это поможет сэкономить затраты на производство.
- Приспособление для бензопилы продольной распиловки своими руками должно иметь такую высоту, при которой у оператора не будет уставать спина и руки.
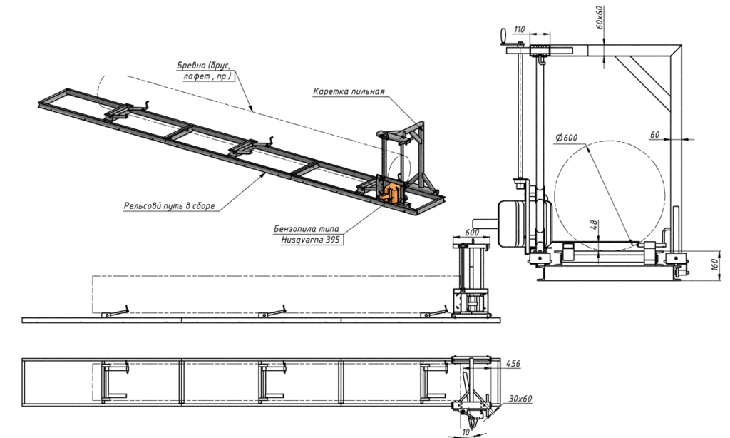
Самодельная пилорама из бензопилы, чертежи которой можно найти в специальной литературе, довольно проста в изготовлении. Изготовление проводится по такой схеме:
- Создать каркас посредством сваривания уголков или труб в конструкцию необходимого размера;
- Для выполнения салазок можно использовать деревянные доски, которые в месте движения салазок покрываются оцинкованным листом или нержавейкой. Можно также использовать для этого уголок, по которому будут двигаться ролики. Есть также возможность выполнения этого устройства из рельсов. Все зависит от нагрузки, которой будет подвергаться станок;
- Изготовить салазки можно из 50 мм доски;
- Изготовление механизма, который будет регулировать толщину доски. Можно использовать вариант, который предлагают специалисты компании «Логосоль». В нем происходит движение рабочего материала, а режущий элемент закреплен неподвижно. Такая конструкция подходит для работы с небольшими бревнами.
Можно также использовать вариант, при котором бревно остается неподвижным, а режущая часть станка двигается по специальной линейке. Монтаж бензопилы выполняется при помощи специальных креплений на станине оборудования.
По завершении работы необходимо проверить прочность станка и выполнить наладку его функций.
Приспособление из болгарки
Есть также возможность изготовления пилорамы в домашних условиях, основой для которой служит болгарка. Этот вариант станка обладает практичностью эксплуатации и простотой выполнения. Для выполнения оборудования можно придерживаться такой инструкции:
- Упор изготавливается из уголков, расположенных по сторонам каркаса. Их края необходимо закруглить.
- На корпус надевается хомут из металла и закрепляется винтами по краям.
- Ручка выполняется самостоятельно из металлического прута, трубы или поперечной скобы.
- Для выполнения регулировочной штанги можно использовать стальной прут диаметром 0,4 — 0,6 см. Его конец загибается в виде петли.
- Чтобы обеспечить вхождение штанги в ручку, необходимо на задней части ручки нарезать небольшую резьбу.
Болгарка представляет собой углошлифовальную машинку. Поэтому необходимо учитывать такие моменты:
- Продолжительность непрерывного использования самодельной пилорамы из болгарки не должна превышать 20 минут, чтобы избежать перегревания мотора станка;
- Стандартная защита диска не подходит для самодельного устройства. Необходимо изготовить защитный кожух своими руками.
Перед началом эксплуатации этого вида пилорамы, мобильный цепной механизм нуждается в предварительной проверке и регулировке. Глубину пропила можно отрегулировать при помощи гаек, которые или затягиваются, или отпускаются. Ручной вариант пилорамы отличается простотой конструкции. Это значительно упрощает работу с ней.
Originally posted 2018-07-04 07:46:16.
Как сделать пилораму из бензопилы: пошаговая инструкция с чертежами
Чтобы изготовить самодельную пилораму в домашних условиях, потребуется подготовить материалы:
- инструмент, оборудованный бензиновым или электрическим мотором;
- направляющие швеллеры с высотой полки до 150 мм (длина зависит от размеров будущей установки);
- специальный механизм для передвижения инструмента или заготовки;
- стальной уголок, применяемый для усиления конструкции и изготовления фиксаторов заготовки;
- чертежи и схемы конструкции;
- сварочный аппарат;
- набор инструмента для соединения компонентов.
Последовательность шагов при изготовлении самодельной пилорамы шинного типа:
- Разметить швеллеры или иной металлический профиль для изготовления основания. Детали пилорамы свариваются между собой дуговой сваркой, для повышения жесткости и размещения фиксаторов бревна применяются дополнительные поперечные связи.
- Изготовить вертикальную раму, которая перемещается по основанию на роликах или шариковых подшипниках. К основному профилю устанавливаются дополнительные раскосы, повышающие жесткость конструкции. Опоры оснащены регулировочными болтами, позволяющими выбрать зазоры между внешней частью ролика и направляющей. Ширина рамы соответствует длине шины, установленной на пиле.
- Смонтировать на вертикальной раме механизм для регулировки положения пилы. В изделии нужно использовать специальный винтовой зажим, способный удержать пилу во время работы. Конструкция струбцины должна противостоять вибрациям и возможным ударным нагрузкам.
- Установить узлы, отрегулировать взаимное положение элементов и провести пробную распиловку. В процессе эксплуатации возможны поломки, которые потребуют доработки конструкции и введения дополнительных деталей, фиксаторов или регуляторов.
Описанный алгоритм изготовления пилорамы из бензопилы своими руками не является единственным вариантом конструкции. В свободном доступе имеются чертежи установок, созданных разными авторами, которые отличаются конфигурацией узлов или способами регулировки положения. Конструкторы снимают свои изделия на видео, которое можно посмотреть на специализированных сайтах.
Например, упрощенная самодельная пилорама из бензопилы состоит из отрезка швеллера, на котором установлена переходная плита с закрепленным инструментом. Установка монтируется на деревянный брус (он же является и заготовкой), уложенный на опоры. После каждого запила инструмент перемещается на расстояние, равное толщине изготовляемой доски. Недостатком конструкции пилорамы является неустойчивость, при опрокидывании установки существует риск травмирования оператора.
Дисковые установки собираются на базе электрического двигателя, допускается применение бензинового агрегата для вращения диска. Мотор крепится на раме через штатные точки крепления, в основании оборудования находится прямоугольный или квадратный узел, изготовленный из швеллера. В конструкции предусматривается стальной защитный кожух, закрывающий верхнюю часть диска. Рекомендуется установить малогабаритный переключатель, не позволяющий включить двигатель с открытым щитком (только для модификации с электрическим двигателем).
Для бытовых пилорамных установок рекомендуется использовать стальные дисковые пилы диаметром 500-600 мм. Рабочий элемент монтируется на выходной валик ротора двигателя, допускается использование повышающего редуктора с ременным приводом. Регулировка натяжения производится смещением корпуса мотора на основании. При изготовлении элементов конструкции рекомендуется располагать рабочую кромку диска на минимальном расстоянии от основания. Встречаются конструкции со специальным пазом в основании, предназначенным для вращающегося диска.




Рекомендации по изготовлению
Чтобы самодельная пилорама работала более эффективно, следует обратить внимание на некоторые рекомендации:
- Конструкция должна быть устойчивой и крепкой, поскольку приходится работать с бревнами различными по весу и размерам;
- Выполнять работы по сборке оборудования необходимо непосредственно на том месте, на котором планируется его размещение. Это обусловлено массивностью и большим весом конструкции;
- Необходимо постоянно смотреть за работой оборудования и поправлять настройки, поскольку конструкция делается своими руками, без применения точных программ и компьютеризации;
- Самодельные пилорамы «разбрасываются» стружкой, поэтому нужно либо соорудить дополнительные конструкции, либо делать уборку после выполненных работ;
- Широкий ленточный пропил влияет на образование большого количества отходов;
- Для обеспечения эффективной работы мобильной тележки необходимо использовать прокладки и пластины, при этом прокладки нужно брать по толщине больше швеллера на 0,5 мм;
- Электродвигатель можно легко заменить бензиновым двигателем. Этот вариант будет более простым, потому что можно использовать бензопилу, а точнее ее двигатель. Полотно от бензопилы будет идти в качестве ленты. Как сделать бензиновую ленточную пилораму, см. на видео;
- Все закрепляющие элементы должны быть надежно зафиксированы для обеспечения безопасной работы всей конструкции;
- Для обеспечения эффективной работы пила должна быть наточена, а зубья разведены.
ВАЖНО ЗНАТЬ: Как сделать решетку на окно своими руками?
Назначение и принцип работы
Пилорама используется, чтобы получать различные пиломатериалы (бруски, рейки, доски, шпалы) из цельных бревен. Она применяется на деревообрабатывающих предприятиях, лесопилках, мебельных фабриках и в сфере строительства. Это приспособление позволяет:
- Уменьшить количество стружки и иной грязи, появляющейся в процессе обработки древесины.
- Распиливать короткие заготовки с длиной от 1 м и получать детали с толщиной до 0,2 см.
- Снизить затраты электроэнергии.
- Устанавливать размерность получаемых пиломатериалов.
- Производить деревянные детали с высоким качеством поверхности с точностью до 2 мм.
Пилорама обладает следующими преимуществами:
- Мобильность. Деревообрабатывающий станок можно быстро разобрать и переместить на новое место.
- Устойчивость конструкции. Деревообрабатывающий станок может функционировать при суровых климатических условиях как в закрытых помещениях, так и за их пределами.
- Удобство эксплуатации. Пилорама оборудована множеством автоматических механизмов, облегчающих процесс обработки бревен. В процессе работы она не издает лишних шумов.
Недостатком этого агрегата является высокая стоимость. Она зависит от разновидности станка и его технических характеристик. На стоимость оборудования также оказывает влияние марка производителя. Дороже всего стоят устройства от шведских и канадских производителей. Их средняя стоимость составляет 324 тыс. руб. Станки, производимые на территории России, стоят 135 – 220 тыс. руб.
Пилорама состоит из следующих элементов:
- Станина. Она имеет П-образную форму и собирается из 2 параллельных швеллеров. По станине перемещается мобильная тележка с пильным элементом, установленным горизонтально. На ней также закрепляются рамы и щетки, предназначенные для очищения рабочей поверхности от опилок и иного производственного мусора.
- Пильная рама. Эта деталь представляют собой устройство, состоящее из нескольких сварных швов. На ее торцах располагаются ведущий и ведомый шкивы. Перемещение пильной рамы осуществляется при помощи металлических роликов и электромеханического привода с ведомыми и ведущими колесами.
- Направляющие. Они закреплены в средней части пильной рамы с помощью кронштейнов. На направляющих располагаются опорные ролики и стойки для бревен.
- Винтовой механизм. Он необходим для регулировки толщины обрабатываемых заготовок. Этот элемент позволяет предотвратить перекос бревна в процессе обработки.
- Зажимное устройство. Оно предназначено для фиксации бревна при распиловке. Зажимное устройство состоит из круглой трубы и зажимов в виде втулок.
- Пила. Она выступает в качестве главного режущего элемента пилорамы. Ее средняя ширина составляет 6 см. Пила натягивается при помощи гидравлического или пружинного механизма. Он позволяет оператору настраивать положение ведомого шкива и предотвращает сход режущего элемента с колес.
- Бак для смазочно-охлаждающей жидкости. Его используют, чтобы предотвратить налипание опилок на режущие элементы. На баке закреплены краны для подачи жидкости.
- Электромотор. Он предназначен для передачи крутящего момента на шкивы и активации механизмов цепной передачи, осуществляющих передвижение пильной рамы. Средняя мощность электродвигателя составляет 5 кВт.
- Пульт управления. Он размещен на верхней перемычке деревообрабатывающего станка. Рядом с пультом управления, со стороны оператора, располагаются измерительные приборы для точного расчета толщины получаемых пиломатериалов.
Устройство домашних пилорам организовано в виде нескольких блоков. Такая конструкция отличается простотой изготовления. Ее недостатком является невысокая производительность. Поэтому данные станки можно использовать только в бытовых условиях для получения небольшого количества пиломатериалов. Принцип работы этого агрегата заключается в резке закрепленного на специальной платформе бревна пильным инструментом, расположенным в горизонтальном положении. Размеры получаемых пиломатериалов предварительно задаются оператором.
Виды и особенности пилорам из бензопилы
Строительные рынки предлагают большой выбор пилорам, в основу которых входит бензопила. Закрепленный в тележке с роликами агрегат можно вручную передвигать по заранее проложенному рельсовому пути. Для заготовки древесины может быть использована мощная цепная или ленточная бензопила.
Цепной агрегат используется для распила круглого леса. В его конструкцию входит пильная цепь, после работы которой остается большое количество опилок. Это является основным недостатком такого вида пилорамы.
Ленточные бензопилы способны распилить бревна достаточно большого диаметра
Работая на такой пилораме, следует иметь в виду, что вокруг нее на большую площадь разлетаются опилки, поэтому необходимо соблюдать осторожность. Справиться с этой проблемой поможет подключенный к стружкоотсосу гибкий воздуховод. Для бытовых условий большие пилорамы чаще всего не требуются, поэтому оптимальным решением будет изготовление функционального самодельного мини-станка
Такой агрегат будет иметь небольшие размеры, в связи с чем его легко можно будет при необходимости перемещать
Для бытовых условий большие пилорамы чаще всего не требуются, поэтому оптимальным решением будет изготовление функционального самодельного мини-станка. Такой агрегат будет иметь небольшие размеры, в связи с чем его легко можно будет при необходимости перемещать.
Чаще всего в качестве основного элемента подобного устройства выступает бензопила, которую можно приобрести в специализированном магазине или использовать агрегат марки «Урал».
Пошаговый процесс изготовления
Итак, процесс будет у нас проходить следующим образом:
- Чертим чертежи исходя из материалов которые у вас имеются;
- Изготовление каркаса. Для этого свариваем уголок или трубу в каркас;
- Изготовление салазок. Можно из деревянной доски с покрытием участка движения салазок нержавеющим листом или оцинковкой. Второй вариант, из уголка, по которому будут ездить ролики. Третий вариант из рельсов. Варианты представлены по мере возрастания нагрузки на пилораму;

Салазки сделаны из доски 50 мм. Доска для меньшего истирания покрыта оцинковкой. По салазкам ездит профильная (квадратная) труба без четвертой стенки.
- Следующий шаг — механизм регулировки толщины доски. Тут существует два варианта. Первый как в пилораме «Logosol», поднимается бревно, а режущая часть неподвижна. Такой вариант больше подходит для распиловки небольших бревен, чтобы не наклоняться и не болела спина, быстрее производить распиловку. Для использования такого способа хорошо подойдут обычные механические домкраты, нужно смотреть чтобы высота подъема их была максимально возможной. Второй вариант это когда бревно неподвижно, а пила опускается и поднимается по линейке. Какой вариант вы будете реализовывать, нужно продумать еще на этапе создания чертежей;
- Крепление бензопилы. Проверка конструкции на прочность. Устранение люфтов;
- Изготовление механизма равномерного продвижения пилы из тросика, бельевой веревки или шнурка:
- Пуско наладка и доработка.
Циркулярка
Вариантов пилорамы два. Они отличаются вертикальным или горизонтальным расположением рабочего инструмента.
Устройство с вертикальным положением бензопилы содержит:
- Направляющую, которую делают из отрезка швеллера или прямоугольной профильной трубы. Длина ее должна быть больше размера обрабатываемых бревен.
- Салазки. Для изготовления используют 2 отрезка (по 40 см) уголка 50х50. Их по концам верхних полок приваривают перпендикулярно к 2 металлическим полосам толщиной 3 мм. Расстояние между внутренними поверхностями вертикальных полок уголков должно соответствовать размеру швеллера или трубы.

Затем:
- Посередине каждого из уголков сверху приваривают одинаковые вертикальные пластины с соосными отверстиями.
- Вставляют в них стальной стержень, прикрепленный сваркой перпендикулярно к шине бензопилы. На стержне с двух сторон одного из вертикальных уголков располагают отрезки труб. Последние фиксируют болтами М8 через соответствующие отверстия с резьбой. Они служат для задания толщины получаемых досок.
Для работы циркулярки:
- Сверху бревна размещают направляющую и крепят ее к нему саморезами, имеющими потайные головки.
- Устанавливают на направляющую салазки.
- Включают двигатель бензопилы и перемещают ее вместе с салазками вдоль бревна.
Итог самостоятельного изготовления пилорамы из бензопилы
Если поставлена цель соорудить мини пилораму для дома, то начинать нужно прежде с изготовления схемы самоделки. На основании схемы можно приступать к реализации задумки в жизнь. Сделать мобильный станок для распиливания досок не трудно, и с этим справится каждый мастер. Для этого нужно иметь под рукой необходимый инструмент в виде болгарки, дрели и сварочного аппарата, расходные материалы в виде крепежей, ручек и винтов, роликов, а также основные части — уголки, швеллера, трубки.
Дальше дело времени и мастерства. При работе на пилораме нужно учитывать следующее, что в конструкции бензопилу лучше использовать цепи из твердосплавных материалов с нанесением на зубьях победитового или алмазного напыления. Это продлит срок службы цепей, а также исключит избыточную нагрузку на инструмент, когда на обычных цепях затупляются зубья. Не рекомендуется проводить распил бревен при низких температурах, так как замерзшие заготовки еще быстрее будут затуплять зубья бензоинструмента. Имея в хозяйстве бензопилу, не стоит ограничиваться ее основным функционалом, так как этот инструмент способен выполнять множество полезной работы, заменяя такое дорогостоящее оборудование, как пилорама. Какие еще возможности имеет бензопила, которые можно расширить при помощи специальных насадок. можно почитать в материале.
Публикации по теме
Как выбирается триммер для укоса травы учитываем все критерии
Бензин с маслом для бензопил — как разбавлять и зачем это делается
Как выбрать масло для бензопилы – полезные рекомендации
Очистка карбюратора триммера: подробное описание процесса

























































